NHÀ Ở RIÊNG LẺ

Mô hình nhà ở riêng lẻ chi tiết với nội thất và đồ đạc, được thiết kế và thi công vào năm 2006. Tệp STL được cung cấp ở tỉ lệ 1:100, có hướng dẫn in chi tiết cho máy Prusa I3 và vật liệu PLA.

👁️
315
Lượt Xem
❤️
5
Lượt Thích
📥
71
Lượt Tải
Cập Nhật Dec 20, 2025
Chi tiết
Tải xuống
Bình Luận
Khoe bản in
Remix

Mô tả

Nội dung được dịch bằng AI

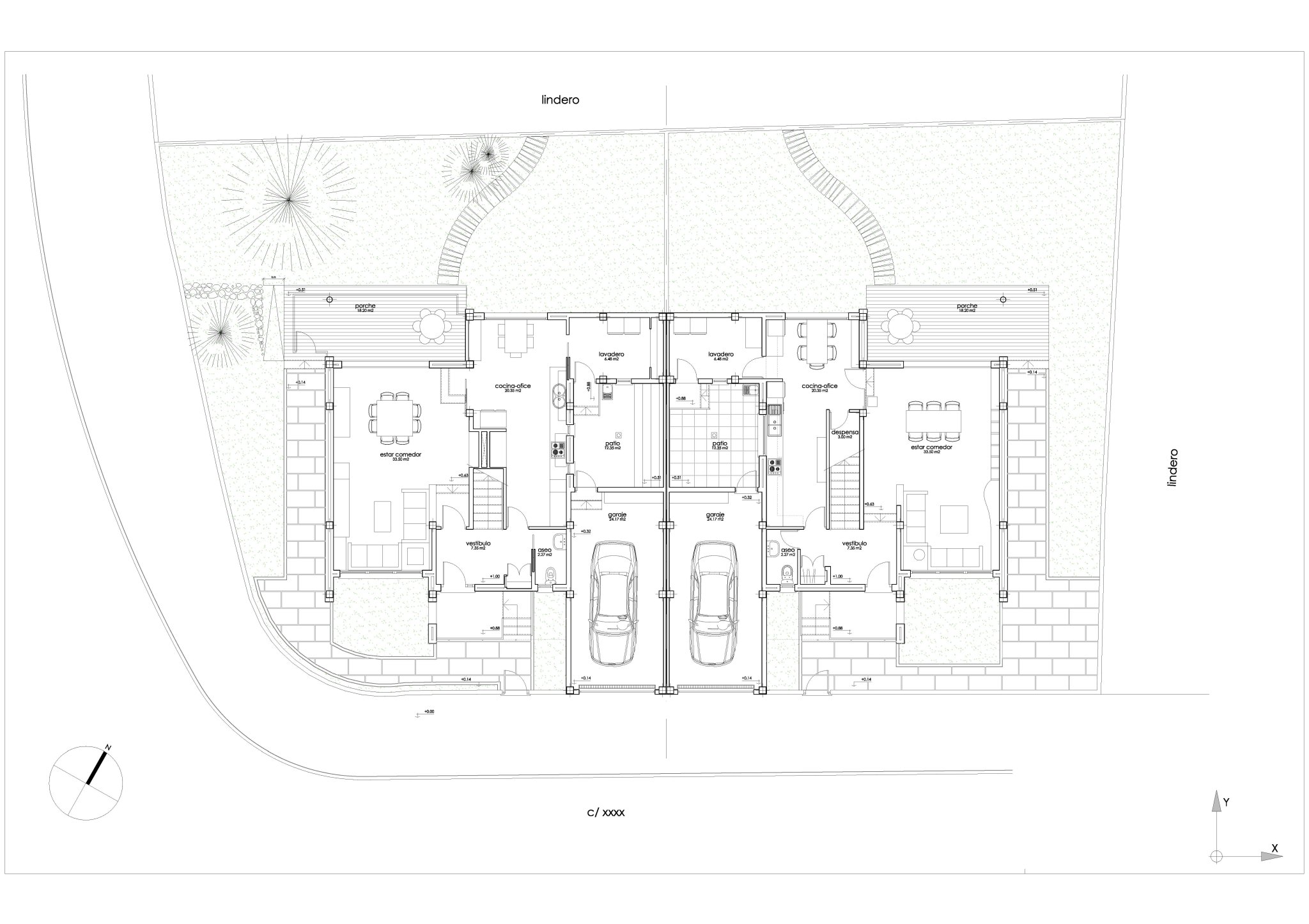
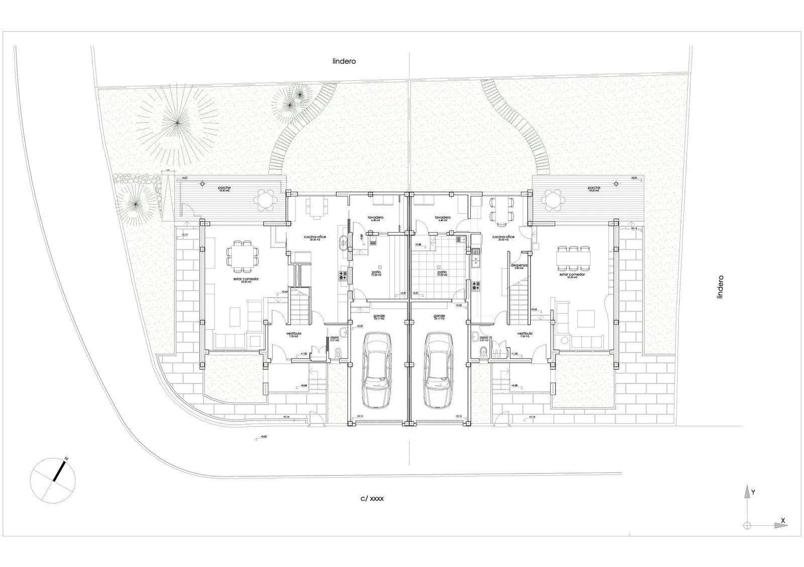
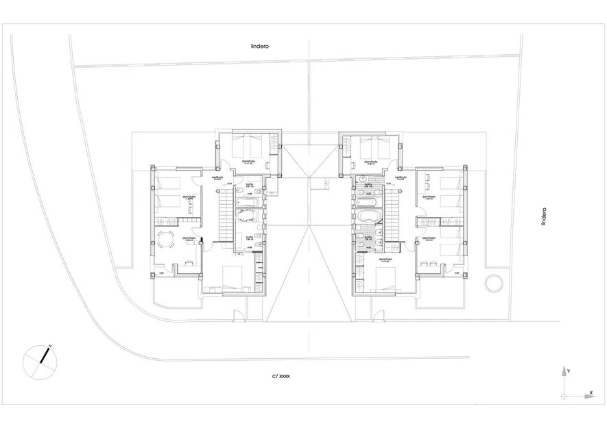
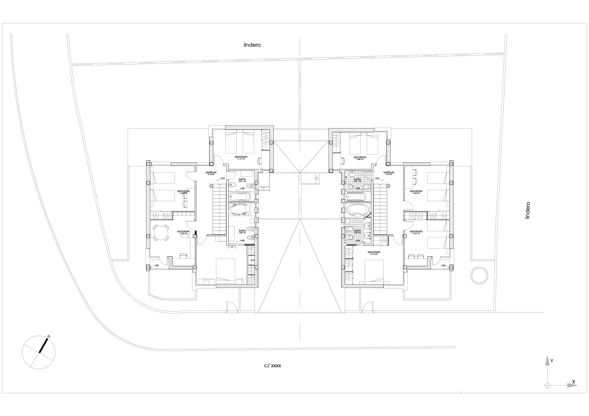
Nhà ở riêng lẻ (Dự án và thi công từ năm 2006) tỉ lệ 1:100. Các tệp STL ở tỉ lệ đó, mặc dù tôi đã giảm chúng 10% khi in bằng máy Prusa I3 Hephestos của mình. Có một vài sai sót trong thiết kế, do thiếu kinh nghiệm, nhưng với mô hình tiếp theo, tôi đã biết mức độ chi tiết nào đáng giá ở kích thước đó. Các cửa kính chưa được in ra, tôi đoán là do quá mỏng (ở tầng trên tôi đã không đặt chúng vì lý do đó), nhưng tôi nghĩ như vậy trông đẹp hơn. Tôi đã đặt một vài giá đỡ để tháo ra ở các cửa sổ góc tầng trên. Tôi đã in các đồ nội thất với màu khác để tạo sự tương phản. Tôi nghĩ kết quả không tệ và nó đã giúp tôi thấy được khả năng ứng dụng của in 3D vào nghề nghiệp của mình (kiến trúc).

Hướng dẫn in

Tôi đã in mô hình nhỏ hơn một chút, vì sợ chiếm nhiều diện tích khay in, nhưng nó hoàn toàn vừa với khay của máy Prusa I3. Nó được in bằng PLA ở chế độ 0.3, 65 mm/s và 205ºC. Có một vài giá đỡ cần tháo ra ở các cửa sổ góc trên cùng (do phần nhô ra). Ở tầng trệt, có một vài mối nối cần gỡ bỏ (ban đầu tôi muốn nối các tầng lại với nhau nhưng không hoạt động. Nó dễ dàng gỡ bỏ bằng dao rọc giấy). Để lắp tầng trệt và tầng trên, tôi đã phải chà nhám nhẹ bậc thang cuối cùng ở khu vực cầu thang, vì nó cạ một chút ở hai bên. Lan can rất mỏng manh, lan can tầng trệt của tôi gặp vấn đề và tôi đã gỡ bỏ nó. Mọi thứ sẽ phụ thuộc vào việc máy in của bạn được căn chỉnh và kiểm soát tốt như thế nào.

Giấy phép

Tác phẩm này được cấp phép theo

Creative Commons — Attribution — Noncommercial

CC-BY-NC

Yêu cầu ghi công
Remix & phái sinh Được phép
Sử dụng thương mại Không được phép

File mô hình

TẤT CẢ FILE MÔ HÌNH (4 tệp)
Đang tải files, vui lòng chờ...
Vui lòng đăng nhập để bình luận.

Chưa có bình luận nào. Hãy là người đầu tiên!

Vui lòng đăng nhập để khoe bản in của bạn.

Chưa có bản in nào được khoe. Hãy là người đầu tiên!

Remix (0)