Nhà Chim – Nhà Chim In 3D Có Mái Mở

Nhà chim hiện đại với thiết kế độc đáo, mái có thể mở dễ dàng để vệ sinh, kèm theo lỗ treo tường hình chìa khóa tiện lợi và cách lắp ráp đơn giản. Thích hợp cho việc trang trí sân vườn và làm nơi trú ẩn cho chim.

👁️
31
Lượt Xem
❤️
1
Lượt Thích
📥
6
Lượt Tải
Cập Nhật Dec 20, 2025
Chi tiết
Tải xuống
Bình Luận
Khoe bản in
Remix

Mô tả

Nội dung được dịch bằng AI

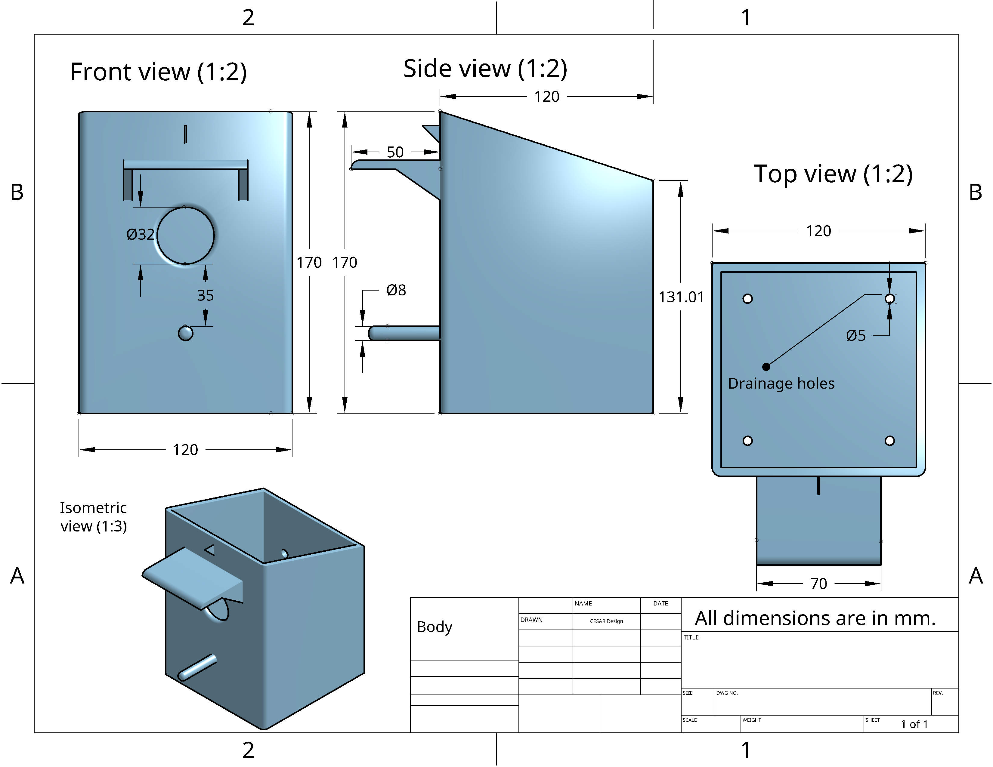
Cái nhà chim in 3D này có thiết kế sạch sẽ, tiện dụng với mái có thể mở/tháo rời để dễ dàng vệ sinh và bảo trì.

Mái được in riêng và bắt vít, cho phép tiếp cận bên trong một cách đơn giản.

Nhà chim có lỗ vào hình tròn, chỗ đậu cho chim và hai lỗ treo tường hình chìa khóa ở mặt sau để treo tường dễ dàng và kín đáo.

🔧 Tính năng: • Mái có thể tháo rời / mở (in riêng) • Dễ dàng vệ sinh và bảo trì • Giá treo tường hai lỗ chìa khóa (vít giấu kín) • Có chỗ đậu chim • Lắp ráp bằng vít đơn giản • Yêu cầu hỗ trợ cây tối thiểu

📏 Kích thước • Chiều dài: 120 mm • Chiều rộng: 120 mm

• Chiều cao (độ dốc mái): • 170 mm (điểm cao nhất) • 130 mm (điểm thấp nhất)

• Đường kính lỗ vào: Ø32 mm • Đường kính chỗ đậu: Ø8 mm • Chiều dài chỗ đậu: 40 mm

🔩 Phần cứng cần thiết • 3× vít M3 (gắn mái) • 2× vít treo tường (để treo bằng lỗ chìa khóa – đầu vít ≤ 7 mm)

🖨 Cài đặt in:

🧱 Thân chính • Vật liệu: PLA / PETG • Chiều cao lớp: 0.2 mm • Tường: 3 • Infill: 15% • Mẫu Infill: Grid • Hỗ trợ: Hỗ trợ cây (Tự động – Mảnh) • Viền (Brim): Tùy chọn

🏠 Mái (In riêng) • Vật liệu: PLA / PETG • Chiều cao lớp: 0.2 mm • Tường: 4 • Infill: 15% • Hỗ trợ: Không cần hỗ trợ

🧩 Hướng dẫn lắp ráp:

  1. In thân chính và mái là các bộ phận riêng biệt
  2. Gỡ bỏ phần hỗ trợ
  3. Gắn mái bằng vít M3
  4. Treo nhà chim bằng vít treo tường và các khe lỗ chìa khóa

🌦 Sử dụng ngoài trời • PLA phù hợp cho việc sử dụng ngoài trời có che chắn • PETG được khuyến nghị cho độ bền ngoài trời lâu dài

📄 Tệp đính kèm • Thân nhà chim • Mái có thể tháo rời

Giấy phép

Tác phẩm này được cấp phép theo

Creative Commons — Attribution — Noncommercial

CC-BY-NC

Yêu cầu ghi công
Remix & phái sinh Được phép
Sử dụng thương mại Không được phép

File mô hình

TẤT CẢ FILE MÔ HÌNH (6 Tập tin)
Đang tải files, vui lòng chờ...
Vui lòng đăng nhập để bình luận.

Chưa có bình luận nào. Hãy là người đầu tiên!

Vui lòng đăng nhập để khoe bản in của bạn.

Chưa có bản in nào được khoe. Hãy là người đầu tiên!

Remix (0)